Περιεχόμενο
Ο τροφοδότης μοσχαριού είναι ένα δοχείο σε σχήμα κουτιού. Ωστόσο, ο σχεδιασμός του έχει κάποιες διαφορές, ανάλογα με τον σκοπό της τροφοδοσίας. Οι τροφοδότες για σύνθετες ζωοτροφές κατασκευάζονται ως ένα μόνο δοχείο. Για σανό, χρησιμοποιούνται φυτώρια πλέγματος από ξύλινες ράγες ή μεταλλικές ράβδους.
Χαρακτηριστικά των τροφοδοτών βοοειδών
Ένα δοχείο για τη σίτιση βοοειδών τοποθετείται κατά τη διάρκεια της διευθέτησης του στάβλου. Στους μοσχάρια παρέχεται τροφή και σανός ελεύθερης ροής. Ένας τροφοδότης συγκεκριμένου σχεδιασμού χρησιμοποιείται για κάθε τύπο τροφής. Φρέσκο γρασίδι ή ξηρό σανό χύνεται στο φυτώριο. Ενώ τρώνε, τα μοσχάρια διασκορπίζουν το φαγητό, το ποδοπατούν με τις οπλές τους. Για οικονομική χρήση σανό, τα ορθογώνια φυτώρια κατασκευάζονται με πλέγμα. Τα μοσχάρια παίρνουν μόνο την απαιτούμενη ποσότητα τροφής μέσω των κυττάρων και η περίσσεια παραμένει στη γούρνα. Ολόκληρα δοχεία χρησιμοποιούνται για υγρό πουρέ. Οι βαθιές πλαστικές κουβάδες είναι δημοφιλείς στα αχυρώνα στο σπίτι. Κρεμαστά στο στάβλο.
Ο τροφοδότης δεν πρέπει μόνο να είναι βολικός για τα μοσχάρια, αλλά και να καταλαμβάνει ελάχιστο χώρο. Οι πιο δημοφιλείς είναι οι δομές της γωνίας ή του αρθρωτού τύπου. Οι κατασκευαστές προσφέρουν μια τεράστια ποικιλία μοντέλων. Είναι σημαντικό να σημειωθεί ότι οι τροφοδότες για διαφορετικά ζώα είναι διαφορετικοί. Τα ακόλουθα μεγέθη είναι κατάλληλα για βοοειδή:
- το βέλτιστο μήκος κυμαίνεται από 100 έως 120 cm.
- κάτω πλάτος περίπου 35-40 cm.
- άνετο ύψος σκάφους 70-75 cm.
Παρά τη μεγάλη ποικιλία των εργοστασιακών προϊόντων, πολλοί ιδιοκτήτες δημιουργούν ζωοτροφές από ξύλο ή μέταλλο. Το πλεονέκτημα ενός σπιτικού βρεφικού σταθμού είναι το ατομικό μέγεθος. Ένα άλλο πλεονέκτημα είναι η δυνατότητα βελτίωσης του σχεδιασμού. Οι τεχνίτες έχουν βρει μοντέλα με αφαιρούμενες γρίλιες, πτυσσόμενους τοίχους. Πτυσσόμενο φυτώριο για βοοειδή είναι εύκολο να συντηρηθεί. Είναι πιο εύκολο να καθαριστούν, να πλυθούν, να στεγνώσουν στον ήλιο.
Τύποι τροφοδοτών για αγελάδες και μοσχάρια
Όλοι οι τροφοδότες για νεαρά μοσχάρια και ενήλικα βοοειδή διαφέρουν ως προς τον τύπο τροφής και τον τόπο εγκατάστασης. Τα φυτώρια χρησιμοποιούνται για σανό και χαλαρά πουρέ και είναι εγκατεστημένα σε στάβλο ή σε βοσκότοπους.
Τροφοδότης βοοειδών για σανό
Το φυτώριο σανού έχει δομή δικτυωτού πλέγματος. Το σταθερό μοντέλο έχει συνήθως ορθογώνιο σχήμα. Συχνά μοιάζει με ανεστραμμένο κώνο. Η δεξαμενή σίτισης βοοειδών είναι εξοπλισμένη με πλέγμα. Τα μοσχάρια θα τραβήξουν σανό μέσα από τα παράθυρα από τα κλαδιά. Το φυτώριο πλέγματος στο στάβλο έχει ανασταλεί για να μεγιστοποιήσει την εξοικονόμηση χώρου. Ο σχεδιασμός δεν παρεμβαίνει στα μοσχάρια, επιτρέπει την πρόσβαση στο σανό ανά πάσα στιγμή, είναι εύκολο στη συντήρηση και εξυπηρετεί για πολλά χρόνια.
Ακόμα και όταν τα βοοειδή βόσκουν σε βοσκότοπους, τα μοσχάρια μπορεί να μην έχουν αρκετό γρασίδι. Η ανεπάρκεια αντισταθμίζεται με σανό. Ωστόσο, δεν μπορείτε απλά να το συσσωρεύσετε στο έδαφος. Τα βοοειδή θα καταπατούν το σανό στο έδαφος. Η λύση στο πρόβλημα είναι η εγκατάσταση δεξαμενών βοσκής. Ομοίως έχουν δομή πλέγματος, αλλά υπερμεγέθη. Έχουν στρογγυλό ή κωνικό σχήμα, το οποίο βελτιώνει την άνεση της συλλογικής χρήσης. Το μέγεθος υπολογίζεται για να ταιριάζει σε ένα ρολό σανό. Τα μοσχάρια θα τραβήξουν σταδιακά το αποξηραμένο γρασίδι. Το ρολό στο κωνικό δοχείο καθιζάνει καθώς τρώγεται. Η διατροφή είναι πάντα διαθέσιμη για βοοειδή και ο ιδιοκτήτης δεν χρειάζεται να αναπληρώνει συχνά το φυτώριο με σανό.
Τροφοδότες για σύνθετες ζωοτροφές και κόκκους
Για χύμα ζωοτροφές σε μορφή πολτού, σιτηρών, σύνθετων ζωοτροφών, τα φυτώρια παρασκευάζονται σε ένα μόνο δοχείο.Κάδοι και ορθογώνια κουτιά κρέμονται στο στάβλο για τα μοσχάρια. Συλλογικές κοιλότητες μεγάλου μήκους τοποθετούνται στο βοσκότοπο. Μερικές φορές τα δοχεία καλύπτονται με σχάρα στην κορυφή έτσι ώστε τα βοοειδή να μην ξεφλουδίζουν το σιτάρι. Ωστόσο, οι αγελάδες συχνά κολλάνε μεταξύ των ράβδων και τραυματίζουν το κεφάλι τους. Η καλύτερη επιλογή θεωρείται ότι είναι χωρίς το πλέγμα. Ωστόσο, η ζήτηση για αυτό προκύπτει όταν ένα ενήλικο βοοειδή διατηρείται με μοσχάρια.
Τα νεαρά ζώα μπορεί να μην πάρουν φαγητό. Στα μοσχάρια δίνονται χωριστά δοχεία με περιοριστικά πλέγματα, κατασκευάζονται μόνο στενά κελιά. Μόνο το μικρό κεφάλι του μοσχάρι σέρνεται ανάμεσα στις ράβδους. Ένα ενήλικο ζώο δεν παίρνει τροφή.
Απαιτήσεις για τροφοδότες
Η δομή του τροφοδότη βοοειδών για σανό ή κόκκους είναι απλή. Ωστόσο, επιβάλλονται ορισμένες προϋποθέσεις στο νηπιαγωγείο και πρέπει να συμμορφώνονται με αυτές.
Τροφοδότες βοσκοτόπων
Εάν είναι απαραίτητο να χρησιμοποιήσετε έναν τροφοδότη σε ένα λιβάδι, ένας ιστότοπος είναι εξοπλισμένος για την εγκατάστασή του. Σανός και βρεγμένη τροφή παρέχονται σε ξεχωριστά φυτώρια. Οι ακόλουθες απαιτήσεις επιβάλλονται στους βοοειδή βοσκής:
- αντοχή και λειτουργικότητα της δομής ·
- ένα δοχείο για τη διατροφή βοοειδών δεν πρέπει να αποτελεί κίνδυνο ·
- οι συλλογικές αναρτήσεις απαιτούν μεγάλη χωρητικότητα.
- βεβαιωθείτε ότι έχετε συσκευές για την αποτροπή της απώλειας τροφής.
- Η φάτνη πρέπει να είναι εύκολη στη μεταφορά, εγκατάσταση, συντήρηση.
Για ξηρές σύνθετες τροφές ή κόκκους στο βοσκότοπο, είναι πιο αποτελεσματική η εγκατάσταση αυτόματων τροφοδοτών. Πραγματοποιούν αυτόματη τροφοδοσία τροφής ελεύθερης ροής, παρέχουν τον απαραίτητο ρυθμό για κάθε μοσχάρι, εξαλείφοντας την πιθανότητα απώλειας.
Ένας τροφοδότης έχει ζήτηση σανό σε μια εποχή που υπάρχει έλλειψη φρέσκου χόρτου στο βοσκότοπο. Το νηπιαγωγείο είναι ευρύχωρο, κατά προτίμηση σε σχήμα κώνου, μόνο ανάποδα. Αυτός ο σχεδιασμός λειτουργεί με βάση την αρχή ενός αυτόματου τροφοδότη. Το δέμα του σανού σταδιακά θα γλιστρήσει κάτω από τα κεκλιμένα τοιχώματα καθώς τα μοσχάρια το τρώνε.
Τροφοδότες στάβλων
Στις εκμεταλλεύσεις, τα βοοειδή σε ένα στάβλο συντηρούνται χειροκίνητα ή αυτόματα με ειδικό εξοπλισμό. Ανάλογα με αυτό, επιλέγεται ο τύπος τροφοδότη στάβλων. Επιπλέον, λαμβάνεται υπόψη ο αριθμός των μόσχων και ο τρόπος με τον οποίο διατηρούνται.
Οι ακόλουθες απαιτήσεις επιβάλλονται σε μια σταθερή φάτνη:
- ευρύχωρος όγκος;
- η απουσία αιχμηρών άκρων που δημιουργούν κίνδυνο βοοειδών ·
- διαθεσιμότητα απλής υπηρεσίας
- την παρουσία ενός οριακού τοιχώματος στο πλάι, το οποίο δεν επιτρέπει στο φαγητό να πέσει έξω.
Σε ένα περίπτερο που περιέχει μικρό αριθμό βοοειδών ή ένα μοσχάρι, μπορούν να χρησιμοποιηθούν μικροί σπιτικοί τροφοδότες, όπως βαθιά κουβάδες. Σε μεγάλες εκμεταλλεύσεις, χρησιμοποιούνται ειδικοί πίνακες, προσαρμοσμένοι για αυτόματη διανομή τροφών. Η συσκευή κατασκευάζεται περπατώντας κατά μήκος των μοσχαριών. Τα πλευρικά τοιχώματα με ύψος 50 cm μπορούν να προεξέχουν ως προστατευτικό κιγκλίδωμα. Ο πίνακας ανυψώνεται από το πάτωμα σε μέγιστο ύψος 30 cm.
Εάν ο τύπος εκτροφής βοοειδών στο στάβλο είναι χαλαρός, τότε τα τραπέζια σανού είναι περιφραγμένα με έναν από τους τρεις τύπους σχαρών:
- Οι ίσιοι φράκτες δεν παρεμποδίζουν την κίνηση των μόσχων ελεύθερα, πάρτε σανό οποιαδήποτε στιγμή επιθυμούν. Ο σχεδιασμός θεωρείται ο πιο βολικός.
- Οι κεκλιμένοι φράκτες περιορίζουν την ελεύθερη κίνηση των μόσχων στο στάβλο.
- Οι αυτόματοι φράκτες παρέχουν μια επιπλέον επιλογή για τη στερέωση του μοσχαριού σε μια θέση. Η συσκευή βοηθά στη διεξαγωγή εξετάσεων, ιατρικών και άλλων διαδικασιών.
Από τις τρεις ποικιλίες, οι αυτόματες γρίλιες είναι οι πιο ακριβές. Τα αχαλίνωτα μοσχάρια μπορούν να τα σπάσουν γρήγορα.
Πώς να φτιάξετε τροφοδοτικά μοσχάρι
Στο νοικοκυριό, συνήθως χρησιμοποιούν σπιτικούς τροφοδότες. Το υλικό κατασκευής είναι μέταλλο ή ξύλο. Η DIY συναρμολόγηση ενός τροφοδότη για σανό ή χαλαρή τροφή είναι διαθέσιμη σε οποιονδήποτε ιδιοκτήτη με ελάχιστες δεξιότητες.Ωστόσο, απαιτείται εμπειρία συγκόλλησης στην κατασκευή μεταλλικής κατασκευής.
Στο βίντεο, ένα παράδειγμα κατασκευής μεταλλικού βρεφικού σταθμού:
Πώς να φτιάξετε έναν τροφοδότη σανού
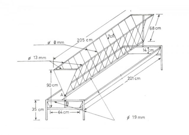
Ο πιο αξιόπιστος τροφοδότης σανού είναι μια συγκολλημένη μεταλλική δομή πλέγματος. Το νηπιαγωγείο μπορεί να καταρριφθεί από ξύλινες ράγες, αλλά η διάρκεια ζωής τους είναι πολύ κατώτερη από το αντίστοιχο χάλυβα. Ένας τροφοδότης για μικρό αριθμό μοσχαριών τίθεται σε αναστολή. Για μεγάλο αριθμό βοοειδών, παρέχεται συλλογικός βρεφικός σταθμός. Συνήθως τοποθετούνται στα πόδια. Το δοχείο πλέγματος για σανό συγκολλάται στο σχήμα του γράμματος "V". Τοποθετείται σε ορθογώνια βάση. Συχνά, μια παλέτα συνδέεται κάτω από το δοχείο σχάρας για να συλλέξει το σανό που έχει πέσει. Ένα παράδειγμα ενός τέτοιου τροφοδότη φαίνεται στο σχέδιο.
Η μεταλλική κατασκευή είναι κατασκευασμένη από σωλήνες και ράβδους. Το πλαίσιο και τα πόδια συγκολλούνται από έναν παχύ σωλήνα με διάμετρο 20 mm. Το σκελετό του δοχείου σχήματος V είναι κατασκευασμένο από σωλήνες διαμέτρου 15 mm. Για το πλέγμα χρησιμοποιείται ράβδος πάχους 8 mm.
Παραγγελία συναρμολόγησης:
- Ο σωλήνας και η ράβδος κόβονται με μύλο. Το μήκος των κενών αντιστοιχεί στις διαστάσεις του σχεδίου.
- Πρώτα, μια βάση συγκολλάται από έναν παχύ σωλήνα. Πρέπει να πάρετε ένα κανονικό ορθογώνιο.
- Το επόμενο βήμα είναι να συγκολληθεί ένα πλαίσιο σχήματος V από ένα σωλήνα με διάμετρο 15 mm κάτω από ένα δοχείο σανό. Οι ράβδοι συγκολλούνται κάθετα, σχηματίζοντας τις κυψέλες του τροφοδότη.
- Η ορθογώνια βάση συνδέεται με την κατασκευή δικτυωτού πλέγματος σε σχήμα V. Προαιρετικά, μπορείτε να εγκαταστήσετε μια γαλβανισμένη παλέτα.
Για προστασία από τη διάβρωση, ο τελικός τροφοδότης βάφεται με μη τοξική βαφή.
Πώς να φτιάξετε μια τροφή για ζωοτροφές
Είναι ευκολότερο να δοθεί σύνθετη τροφή στα μοσχάρια σε πλαστικούς κουβάδες που αιωρούνται στον τοίχο του πάγκου. Ωστόσο, για τα ενήλικα βοοειδή, συνιστάται η εγκατάσταση ενός στερεού τροφοδότη. Είναι κατασκευασμένο με τη μορφή γούρνας. Το υλικό κατασκευής μπορεί να είναι λαμαρίνα ή σανίδες. Η σιδερένια γούρνα είναι βαριά, σκουριάζει γρήγορα από υγρό πουρέ. Είναι ιδανικό να κατασκευάσετε έναν ξύλινο τροφοδότη από σανίδες πάχους 40 mm.
Παραγγελία συναρμολόγησης:
- Μια ασπίδα χτυπιέται από τρεις σανίδες μήκους 60 cm και πλάτους 15 cm. Το στοιχείο θα χρησιμεύσει ως το κάτω μέρος του τροφοδότη βοοειδών. Μια ασπίδα παρόμοιου μεγέθους καταρρίπτεται για την εσωτερική πλευρά.
- Για την εξωτερική σανίδα, λαμβάνονται τρεις σανίδες μήκους 60 cm, μόνο το πλάτος των δύο κενών είναι παρόμοια 15 cm και το τρίτο στοιχείο είναι 10 cm. Η ασπίδα γκρεμίζεται προς τα κάτω έτσι ώστε η στενή σανίδα να είναι μεταξύ δύο πλατιών.
- Τα πλαϊνά βύσματα κόβονται από ένα ευρύ συμπαγές χαρτόνι ή κόβονται σε στενά κενά και στη συνέχεια χτυπιούνται σε μικρές ασπίδες. Πρέπει να πάρετε δύο ορθογώνια διαστάσεων 40x45 cm.
- Μια γούρνα συναρμολογείται από τις τελικές ασπίδες. Τα στοιχεία στερεώνονται με καρφιά ή βίδες.
Ο τελικός τροφοδότης υποβάλλεται σε άλεση. Οι αιχμηρές άκρες κόβονται υπό γωνία 45 σχετικά με.
Παιδικοί σταθμοί βοοειδών
Η διαδικασία παραγωγής τροφών για νεαρά μοσχάρια είναι παρόμοια, μόνο είναι απαραίτητο να προβλεφθεί μια αναδιπλούμενη σχάρα που εμποδίζει τα ενήλικα βοοειδή να τρώνε τροφές. Το μήκος του βρεφικού σταθμού είναι μέγιστο 1 m, το πλάτος είναι τουλάχιστον 40 cm. Οι πλευρές έχουν ύψος έως 100 cm.
Το βέλτιστο υλικό για την κατασκευή είναι σανίδες από σκληρά δέντρα. Τα τεμάχια εργασίας κόβονται σύμφωνα με τις μεμονωμένες διαστάσεις του σχεδιαζόμενου σχεδίου. Αν επικεντρωθούμε στα καθιερωμένα πρότυπα, τότε οι τροφοδότες για νεαρά μοσχάρια έχουν τις ακόλουθες διαστάσεις:
- ύψος εσωτερικής πλευράς - 100 cm, εξωτερική πλευρά - 30 cm.
- κάτω πλάτος - 45 cm.
- μήκος κατωφλίου - 80 cm.
Έχοντας αποφασίσει για το μέγεθος, αρχίζουν να φτιάχνουν το νηπιαγωγείο για τα μοσχάρια.
Παραγγελία συναρμολόγησης:
- Οι ξηρές σανίδες τρίβονται, πριονίζονται με ένα χέρι ή κυκλικό πριόνι. Σύμφωνα με το σχέδιο, οι ασπίδες πέφτουν από τα κενά, μετά την οποία συναρμολογείται η γούρνα.
- Μια ημικυκλική εσοχή κόβεται στο πλάι, διευκολύνοντας το μοσχάρι να πάρει φαγητό.
- Οι ράβδοι καταρρίπτονται από τις ράβδους. Το πλάτος των κελιών επιλέγεται έτσι ώστε η κεφαλή του μοσχαριού να μην κολλήσει.
Τα έτοιμα φυτώρια τρίβονται, κόβονται αιχμηρά άκρα
συμπέρασμα
Ο τροφοδότης μοσχαριών πρέπει να είναι βολικός για τα ζώα και για το προσωπικό συντήρησης που τον καθαρίζει και διανέμει τροφή. Όταν φτιάχνετε ένα σπιτικό φυτώριο, πρέπει να ανησυχείτε για τη δύναμη και την ασφάλεια της χρήσης της δομής.







