Περιεχόμενο
Σε μια ιδιωτική αυλή, απαιτείται ένας αχυρώνας ως αποθήκη ή για τη διατήρηση των ζώων. Συχνά, αυτή η δομή χρησιμότητας κατασκευάζεται από χρησιμοποιημένα υλικά ή ό, τι απομένει μετά την κατασκευή του σπιτιού. Το μέγεθος και ο σχεδιασμός του αχυρώνα καθορίζεται από τον σκοπό του. Ας υποθέσουμε, για την αποθήκευση του αποθέματος, αρκεί να χτίσετε ένα μικρό μπλοκ ψυχρής χρησιμότητας και πρέπει να διατηρήσετε μεγάλο αριθμό πουλερικών σε ένα ευρύχωρο μονωμένο κτίριο. Τώρα θα εξετάσουμε πώς να φτιάξουμε ένα υπόστεγο με τα χέρια μας από ξύλο και αφρό, και επίσης θα παρουσιάσουμε διάφορες επιλογές για τα σχέδια του κτιρίου της φάρμας.
Προσδιορισμός της θέσης του αχυρώνα
Ο τόπος εγκατάστασης του αχυρώνα επιλέγεται συνήθως πιο μακριά από το κτίριο κατοικιών. Είναι επιθυμητό να είναι λόφος, διαφορετικά το μπλοκ χρησιμότητας θα πλημμυρίζει συνεχώς κατά τη διάρκεια της βροχής. Σε γενικές γραμμές, πριν επιλέξετε ένα μέρος για κατασκευή, πρέπει να εξετάσετε έργα τουλάχιστον στο Διαδίκτυο και, στη συνέχεια, να αποφασίσετε για το σκοπό του κτιρίου της φάρμας.
Η φωτογραφία δείχνει παραδείγματα όμορφων μονάδων χρησιμότητας για την αποθήκευση αποθεμάτων. Ένα τέτοιο κτίριο μπορεί να εγκατασταθεί σε εμφανές μέρος. Θα γίνει ακόμη και διακόσμηση του ιστότοπου. Απλά πρέπει να προσπαθήσετε να διακοσμήσετε τον αχυρώνα έτσι ώστε να συνδυάζεται με το αρχιτεκτονικό σύνολο. Εάν υποτίθεται ότι κατασκευάζει έναν αχυρώνα από μπλοκ ή χρησιμοποιημένα υλικά για να αναπαράγει ένα πουλί σε αυτό, τότε ένα τέτοιο κτίριο πρέπει να κρυφτεί περισσότερο από την κοινή γνώμη. Εκτός από το γεγονός ότι ο αχυρώνας με την εμφάνισή του θα χαλάσει το εσωτερικό της αυλής, μια δυσάρεστη μυρωδιά θα προέλθει από το πουλί.
Ο Barn προβάλλει παραδείγματα
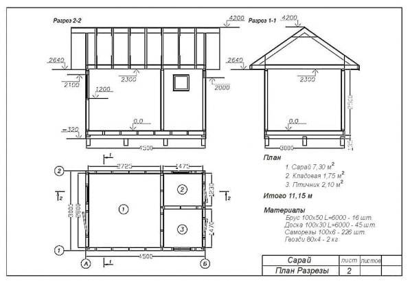
Πριν χτίσετε ένα υπόστεγο με τα χέρια σας, πρέπει να σχεδιάσετε ένα σχέδιο. Το διάγραμμα δείχνει τις διαστάσεις του μελλοντικού κτηρίου. Αυτό θα σας βοηθήσει να υπολογίσετε την απαιτούμενη ποσότητα υλικού. Ωστόσο, ακόμη και πριν από την εκπόνηση ενός έργου, πρέπει να αποφασίσετε για την κατεύθυνση στόχου του αχυρώνα. Για παράδειγμα, μια κατασκευή κεφαλαίου απαιτεί περισσότερες επενδύσεις κεφαλαίου και εργατικό κόστος και ένα προσωρινό μπλοκ χρησιμότητας μπορεί να συναρμολογηθεί γρήγορα από απορρίμματα υλικών.
Είναι σημαντικό να αποφασίσετε για την οροφή του μπλοκ χρησιμότητας. Μπορεί να εγκατασταθεί μια μονή ή αέτωμα στέγη σε ένα υπόστεγο. Κάθε επιλογή οροφής απαιτεί ορισμένες χρηματοοικονομικές επενδύσεις, δεξιότητες, κόστος εργασίας. Εάν χρειάζεστε δωμάτιο πουλερικών, αποθήκευση καυσόξυλων, τουαλέτα ή υπαίθριο ντους, είναι καλό να πάρετε ένα συνδυασμένο κτίριο.
Η επιλογή υλικού εξαρτάται από την κατεύθυνση στόχου του μπλοκ χρησιμότητας. Τα υπόστεγα κατασκευάζονται συνήθως από τούβλα, ξύλο ή αφρό. Επιπλέον, προσφέρουμε διάφορα έργα για τα κτίρια. Ίσως θα σας αρέσουν μερικά από αυτά.
Είναι δύσκολο για ένα άπειρο άτομο να καταρτίσει ένα σχέδιο από ένα μπλοκ χρησιμότητας. Αυτή η φωτογραφία προτείνει ένα έργο υπόστεγο πλαισίου με στέγη αετωμάτων. Συλλέξτε το σύμφωνα με τις καθορισμένες διαστάσεις, εάν σας ταιριάζουν οι διαστάσεις ενός τέτοιου κτιρίου.
Σύμφωνα με το επόμενο έργο, συναρμολογούμε ένα μπλοκ χρησιμότητας πλαισίου, χωρισμένο σε τρία διαμερίσματα. Στο εσωτερικό, μπορείτε να οργανώσετε ένα σπίτι πουλερικών, ντουλάπι, ξύλο, καλοκαιρινή κουζίνα ή άλλους χώρους, όπως απαιτείται.
Όταν αποφασιστεί ότι κατασκευάζουμε έναν αχυρώνα μόνο για τα ζώα, μπορείτε να χρησιμοποιήσετε το ακόλουθο προτεινόμενο έργο.
Μπορείτε να οργανώσετε υπαίθριο ντους, τουαλέτα ή ντουλάπι σε ένα μικρό μπλοκ. Μπορεί να συναρμολογηθεί σύμφωνα με το παρεχόμενο σχέδιο του κτιρίου του σκελετού.
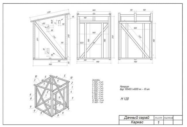
Όλα τα προσωρινά υπόστεγα συναρμολογούνται καλύτερα χρησιμοποιώντας τεχνολογία πλαισίου. Μια γενική άποψη της δομής εμφανίζεται στη φωτογραφία.Μπορείτε να αφήσετε τις διαστάσεις του πλαισίου ή μπορείτε να υπολογίσετε τις δικές σας.
Προσδιορισμός του τύπου θεμελίωσης για τον αχυρώνα
Η επιλογή του τύπου ιδρύματος εξαρτάται από το κτίριο που θα χτιστεί. Βαριά υπόστεγα με τούβλα ή μπλοκ τοίχους είναι χτισμένα σε συγκεκριμένες ζώνες. Είναι λογικό να τοποθετείτε το πλαίσιο hozblok σε μια στήλη. Τώρα θα ρίξουμε μια βήμα-βήμα ματιά στο πώς να φτιάξουμε τη δική μας βάση για το υπόστεγο σας.
Λωρίδα βάσης για μπλοκ χρησιμότητας
Μπορεί επίσης να χυθεί ταινία από οπλισμένο σκυρόδεμα για ένα υπόστεγο. Αν και για τέτοια κτίρια είναι λογικό να εξοπλίσουμε ένα τόσο σταθερό θεμέλιο με τις μεγάλες διαστάσεις τους. Η έκχυση μιας συγκεκριμένης ταινίας απαιτεί πολλή εργασία και οικονομική επένδυση. Συνήθως μια τέτοια βάση κατασκευάζεται για τούβλα ή μπλοκ υπόστεγα.
Ένας βήμα προς βήμα οδηγός για την ανέγερση μιας ταινίας σκυροδέματος για ένα μπλοκ χρησιμότητας μοιάζει με αυτό:
- Τα περιγράμματα του μελλοντικού ιδρύματος επισημαίνονται στον ιστότοπο. Για μια ρηχή βάση, σκάψτε μια τάφρο βάθους 40-50 εκ. Εάν παρατηρηθεί διόγκωση εδάφους, τότε το βάθος της τάφρου αυξάνεται στο επίπεδο της κατάψυξης του εδάφους. Συνήθως, ένα βάθος έως 80 cm είναι αρκετό. Το πλάτος της ταινίας οπλισμένου σκυροδέματος για ένα μπλοκ χρησιμότητας πλαισίου κυμαίνεται από 25-30 cm. Για τούβλα και μπλοκ υπόστεγα, το πλάτος της ταινίας οπλισμένου σκυροδέματος είναι 100 mm περισσότερο από το πάχος των τοίχων.
- Ο πυθμένας της τάφρου καλύπτεται με άμμο και θρυμματισμένη πέτρα πάχους 15 εκ. Ο ξυλότυπος ισούται με το ύψος του υπογείου συλλέγεται από τις σανίδες. Τοποθετείται στην κορυφή κατά μήκος της περιμέτρου της τάφρου και τα κάτω και τα πλευρικά τοιχώματα καλύπτονται με υλικό στέγης. Εάν το ύψος του ξυλότυπου είναι μεγαλύτερο από 50 cm, τα πλευρικά τοιχώματα ενισχύονται με προσωρινά στηρίγματα. Ιδιαίτερη προσοχή πρέπει να δοθεί στην ενίσχυση των γωνιών.
- Προκειμένου η ταινία να έχει καλή αντίσταση στην κάμψη, συναρμολογείται ένα ενισχυτικό πλαίσιο με τη μορφή κουτιού μέσα στην τάφρο. Η ενίσχυση με πάχος 12 mm δένεται με πλέξιμο σύρμα. Δεν μπορείτε να συγκολλήσετε ράβδους.
- Η έκχυση της ταινίας για τον αχυρώνα πραγματοποιείται σε μία ημέρα, διαφορετικά μια μονολιθική βάση δεν θα λειτουργήσει. Θα χρειαστεί πολλή προετοιμασία κονιάματος, οπότε είναι καλύτερα να χρησιμοποιήσετε μπετονιέρα.
Σε τουλάχιστον δύο εβδομάδες, το σκυρόδεμα θα αποκτήσει αντοχή περίπου 70%. Σε ένα τέτοιο ίδρυμα, μπορείτε ήδη να αρχίσετε να τοποθετείτε τους τοίχους του υπόστεγου.
Βάση στήλης για μπλοκ χρησιμότητας
Κατά την κατασκευή μικρών πλαισίων, εγκαθίσταται συνήθως μια στήλη. Οι πέτρες μπορούν να αντέχουν σε ελαφριές κατασκευές και δεν απαιτούν πολλά δομικά υλικά.
Ας δούμε τα βήμα προς βήμα βήματα για την εκτέλεση εργασιών κατά την τοποθέτηση κόκκινων τούβλων βάσεων:
- Τηρώντας τις ενδείξεις, σκάβουν οπές με βάθος 70 εκ. Πρέπει να τοποθετηθούν στις γωνίες του μελλοντικού κτηρίου σε βήματα έως 1,5 μ. Εάν το πλάτος του μπλοκ χρησιμότητας είναι μεγαλύτερο από 2,5 μ, τότε ενδιάμεσο Επιπλέον βάσεις παρέχονται.
- Στο κάτω μέρος κάθε τρύπας, χύνεται ένα στρώμα θρυμματισμένης πέτρας 15 cm με άμμο, μετά το οποίο ξεκινά το κόκκινο τούβλο στο σκυρόδεμα.
Έχοντας κατασκευάσει όλα τα βάθρα, βεβαιωθείτε ότι βρίσκονται στο ίδιο επίπεδο. Εάν είναι απαραίτητο, οι χαμηλές κολόνες είναι κατασκευασμένες με τσιμεντοκονίαμα.
Για την κατασκευή βάσεων για μπλοκ χρησιμότητας πλαισίου, μπορείτε να χρησιμοποιήσετε κοίλα μπλοκ από σκυρόδεμα. Γι 'αυτούς, ανοίγονται τρύπες σε ένα βήμα 1 μ. Οι οδηγίες βήμα προς βήμα για την τοποθέτηση μπλοκ δεν διαφέρουν από την εργασία με τούβλα. Μόνο τα κενά στα μπλοκ κατά τη διάρκεια της τοιχοποιίας πρέπει να γεμιστούν με κονίαμα.
Τα μπλοκ σκυροδέματος μπορούν επιπλέον να τοποθετηθούν κάτω από τις δοκούς δαπέδου του μπλοκ χρησιμότητας. Δεν αφήνουν το δάπεδο να λυγίσει όταν εκτίθεται σε βαριά φορτία.
Στήλη ξύλινη βάση για προσωρινή περίφραξη
Όποιος δημιούργησε προσωρινές καλύβες για οικιακές ανάγκες δεν έθεσε ισχυρά θεμέλια για αυτές. Έτσι, για το μπλοκ χρησιμότητας, μπορείτε να δημιουργήσετε ένα θεμέλιο αρχείων καταγραφής. Εάν τα αντικείμενα επεξεργάζονται καλά με στεγανοποίηση, τότε μια τέτοια προσωρινή καλύβα θα διαρκέσει έως και δέκα χρόνια.
Ας δούμε πώς γίνεται η βαθμιαία τοποθέτηση τέτοιων θεμελίων:
- Από τα υλικά, θα χρειαστείτε ξύλο αγριόπευκου ή βελανιδιάς μήκους 1,5-2 μ. Με διάμετρο 30 εκ. Αυτό το μέρος των πυλώνων που θα είναι στο έδαφος αντιμετωπίζεται με άσφαλτο και τυλίγεται στην κορυφή με δύο στρώσεις υλικού στέγης.
- Οι τρύπες σκάβονται κάτω από τα αρχεία καταγραφής. Ο πυθμένας καλύπτεται με στρώση θρυμματισμένης πέτρας ή χαλικιού 150 mm. Όλα τα κούτσουρα εγκαθίστανται στις τρύπες, μετά τις οποίες τα κενά απλώς ωθούνται με χώμα. Επιτρέπεται να γεμίσετε τα λάκκα με σκυρόδεμα ή να τα γεμίσετε με ξηρό μείγμα άμμου και τσιμέντου.
Η κάτω επένδυση του πλαισίου είναι απλώς καρφωμένη στο ξύλινο θεμέλιο.
Οδηγίες για την κατασκευή ενός υπόστεγου πλαισίου
Αρχικά, ας δούμε την κατασκευή ενός αχυρώνα χρησιμοποιώντας τεχνολογία πλαισίου. Ακόμα και ένα άτομο μπορεί να χειριστεί τέτοια εργασία.
Έτσι, καθοδηγούμενος από το έργο, προχωράμε στην κατασκευή ενός πλαισίου υπόστεγου:
- Αρχικά, από μια ράβδο με μέγεθος τοίχου 100x100 mm, πρέπει να συναρμολογήσετε το κύριο πλαίσιο του μπλοκ χρησιμότητας. Τα ράφια πλαισίου θα προσαρτηθούν σε αυτό. Για να συνδέσετε τα στοιχεία στις γωνίες του σκελετού, στο τέλος της ξυλείας, γίνονται περικοπές στο μισό του πάχους του, δηλαδή 50 mm.
- Ανεξάρτητα από το σχεδιασμό, το θεμέλιο καλύπτεται με δύο φύλλα υλικού κατασκευής σκεπής. Το πλαίσιο του μπλοκ χρησιμότητας καρφιώνεται στην ξύλινη βάση με μακριά καρφιά. Στην ταινία σκυροδέματος, η στερέωση πραγματοποιείται με καρφίτσες αγκύρωσης.
- Τώρα πρέπει να διορθώσετε τις καθυστερήσεις στο πλαίσιο. Μια σανίδα με τομή 50x100 mm τοποθετείται με ένα βήμα 600 mm. Το άνω άκρο του κορμού πρέπει να είναι επίπεδο με την επιφάνεια του σκελετού, διαφορετικά θα είναι δύσκολο να τοποθετήσετε το δάπεδο στον αχυρώνα. Ο μονωμένος αχυρώνας απαιτεί διπλό όροφο. Για να είναι βολικό να χτυπήσετε τα δοκάρια από κάτω με μια πλακέτα ή OSB, μην βιαστείτε να στερεώσετε το πλαίσιο στο θεμέλιο. Ολόκληρη η κατασκευή μπορεί να ασφαλιστεί μετά την τοποθέτηση του υπογείου.
- Όταν το κάτω πλαίσιο της μονάδας χρησιμότητας έχει ήδη στερεωθεί με ασφάλεια στη βάση, αρχίζουν να εγκαθιστούν τα ράφια. Είναι κατασκευασμένα από ράβδο ίδιου πάχους. Βέλτιστα, μπροστά από το υπόστεγο, όπου θα είναι η πόρτα εισόδου, εγκαταστήστε ράφια ύψους 3 m και στο πίσω μέρος - 2,4 m. Η διαφορά ύψους 600 mm θα επιτρέψει την οργάνωση της κλίσης της στέγης του υπόστεγου μπλοκ χρησιμότητας.
- Τα ράφια τοποθετούνται στις γωνίες του σκελετού, στις θέσεις των χωρισμάτων, των ανοιγμάτων θυρών και παραθύρων, καθώς και ακριβώς κατά μήκος του τοίχου σε βήματα έως 1,5 μ. Τα τεμάχια εργασίας είναι προσαρτημένα στο πλαίσιο με μεταλλικές γωνίες στήριξης. Για την ακαμψία του σκελετού, όλα τα ράφια είναι ενισχυμένα με φτερά, τα οποία είναι εγκατεστημένα σε γωνία 45σχετικά με... Η αστάθεια του πλαισίου μπορεί να μειωθεί με την εγκατάσταση προσωρινών αντιγράφων ασφαλείας.
- Στα σημεία όπου είναι εγκατεστημένο το πλαίσιο της πόρτας και το πλαίσιο των παραθύρων, καρφώνονται οριζόντια υπέρθυρα. Η άνω πλεξούδα είναι προσαρτημένη στους στύλους με τις ίδιες γωνίες στερέωσης. Το πλαίσιο συναρμολογείται από δοκό παρόμοιου πάχους, επειδή ολόκληρη η οροφή θα συγκρατηθεί πάνω του.
- Τώρα ήταν η σειρά των δοκών του δαπέδου του αχυρώνα. Είναι κατασκευασμένα από σανίδα με πλευρικό μέγεθος 50x100 mm και τοποθετούνται με σκαλοπάτι 600 mm. Στο πίσω και μπροστά μέρος του πλαισίου, οι δοκοί πρέπει να σχηματίζουν προεξοχή πλάτους περίπου 500 mm.
- Ένα κιβώτιο καρφώνεται πάνω από τα κούτσουρα. Για στέγες στέγης, χρησιμοποιείται ένα αραιό τόρνο κατασκευασμένο από μη άκρες σανίδες πάχους 25 mm. Μια συμπαγής βάση από κόντρα πλακέ ή OSB κατασκευάζεται κάτω από μια εύκαμπτη οροφή.
Σε αυτό, ο σκελετός του πλαισίου είναι έτοιμος. Τώρα μένει να το καλύψει με σανίδα ή clapboard, να βάλει το πάτωμα και να τοποθετήσει τη στέγη που επέλεξε ο ιδιοκτήτης.
Στο βίντεο, η κατασκευή μιας δομής πλαισίου:
Οδηγίες για την κατασκευή ενός υπόστεγου από μπλοκ αφρού
Πρόσφατα, για την κατασκευή υπόστεγων, μπλοκ αφρού έχουν αρχίσει να χρησιμοποιούνται συχνότερα από τούβλα. Η δημοτικότητα του υλικού οφείλεται στο χαμηλό βάρος, την καλή απόδοση θερμομόνωσης και την ικανότητα "αναπνοής". Τα μπλοκ αφρού είναι μεγαλύτερα από το μέγεθος των τούβλων, γεγονός που επιταχύνει τη διαδικασία τοποθέτησης των τοίχων του αχυρώνα. Πρέπει να σημειωθεί ότι τα τεμάχια έχουν διάφορες ποικιλίες που διαφέρουν στη σύνθεσή τους. Τα χαρακτηριστικά του υλικού φαίνονται στον πίνακα.
Για να υπολογίσετε τον απαιτούμενο αριθμό μπλοκ αφρού για το υπόστεγο σας, πρέπει να γνωρίζετε το μέγεθός τους. Τα δεδομένα εμφανίζονται στον πίνακα.
Τα μπλοκ αφρού μπορούν να τοποθετηθούν σε διάλυμα σκυροδέματος, αλλά είναι καλύτερο να χρησιμοποιήσετε κόλλα. Η κατασκευή των τειχών του αχυρώνα ξεκινά από τις γωνίες. Μια βάση λωρίδων ή πλακών είναι κατάλληλη για μια τέτοια κεφαλαιακή δομή. Είναι δυνατή η εγκατάσταση πασσάλων, αλλά θα κοστίσει ακριβά στον ιδιοκτήτη.
Όταν και οι τέσσερις γωνίες είναι επίπεδες και υδραυλικές, ένα σχοινί τραβιέται μεταξύ τους. Η τοποθέτηση τοίχων συνεχίζεται κατά μήκος του κορδονιού από τις γωνίες.Είναι σημαντικό να παρατηρήσετε το ντύσιμο των ραφών στις σειρές, διαφορετικά η δομή θα αποδειχθεί ασταθής.
Το κονίαμα κόλλας ή σκυροδέματος εφαρμόζεται με οδοντωτή σπάτουλα. Το μπλοκ αφρού πρέπει να λιπαίνεται ελεύθερα έτσι ώστε να μην υπάρχουν περιοχές χωρίς διάλυμα. Η περίσσεια μετά την τοποθέτηση του μπλοκ καθαρίζεται με μυστρί ή ακόμη και σπάτουλα.
Τα τοιχώματα του υπόστεγου οδηγούνται έξω με ύψος τουλάχιστον 2 μ. Επιπλέον, ένα λουρί από μια ράβδο - Mauerlat - τοποθετείται γύρω από ολόκληρη την περίμετρο. Το σύστημα δοκού του υπόστεγου ή της οροφής του υπόστεγου θα προσαρτηθεί σε αυτό. Η δεύτερη έκδοση της οροφής είναι πιο δύσκολη στην κατασκευή, αλλά σας επιτρέπει να οργανώσετε μια σοφίτα στο μπλοκ χρησιμότητας για την αποθήκευση αντικειμένων.
Η στεγανοποίηση πρέπει να τοποθετείται κάτω από το Mauerlat. Σε έναν μεγάλο αχυρώνα, μια οροφή σχιστόλιθου ασκεί μεγάλη πίεση στους τοίχους. Για την ομοιόμορφη κατανομή του, συχνά ασκείται στην επάνω σειρά των τοιχωμάτων να χύνεται ένας μονολιθικός οπλισμένος ιμάντας από σκυρόδεμα.
Όταν είναι εγκατεστημένο το υπόστεγο δοκών, το κιβώτιο καρφώνεται, στεγανοποιείται και τοποθετείται στέγη.
Εν κατακλείδι, σας προτείνουμε να ρίξετε μια ματιά σε μια συλλογή φωτογραφιών από υπόστεγα χωρών.
Εάν είστε δημιουργικοί, τότε ο αχυρώνας μπορεί να διακοσμηθεί έτσι ώστε να γίνει το αξιοθέατο του ιστότοπού σας.






















